Asti Centro Storico: Bilocale su Due Livelli con Corte Privata e Riscaldamento Autonomo

Via del Varrone, 21, 14100 Asti AT, Italia

Via del Varrone, 21, 14100 Asti AT, Italia
1 camera da letto
60

Dettagli

  • Tipo: Appartamento
  • Categoria: ,
  • Superficie: 60
  • Piano immobile: Piano terra
  • Certificazione energetica: APE in fase di certificazione
  • Contratto: Vendita
  • Stato di conservazione: Abitabile
  • Riscaldamento: Autonomo
  • Tipo di riscaldamento: Radiatori
  • Ascensore: No

Composizione

  • Camere da letto: 1
  • Locali proprietà principale: 2
  • Bagni: 1
  • Cucina: A vista
  • Arredamento: Arredato

Descrizione

  • Descrizione:

    La Posizione: Prestigio e Comodità Nel cuore pulsante del centro storico di Asti, a pochi passi dalla Cattedrale, proponiamo in vendita una caratteristica soluzione abitativa su due livelli. L'immobile è ubicato in piena zona ZTL, una collocazione che assicura non solo un contesto silenzioso e protetto dal traffico, ma garantisce anche un comodo accesso ai parcheggi della zona, coniugando la bellezza del centro con la praticità logistica.

    Gli Interni e lo Spazio Esterno Inserito in una corte comune riservata, l'appartamento offre spazi ben distribuiti e rari sfoghi esterni:

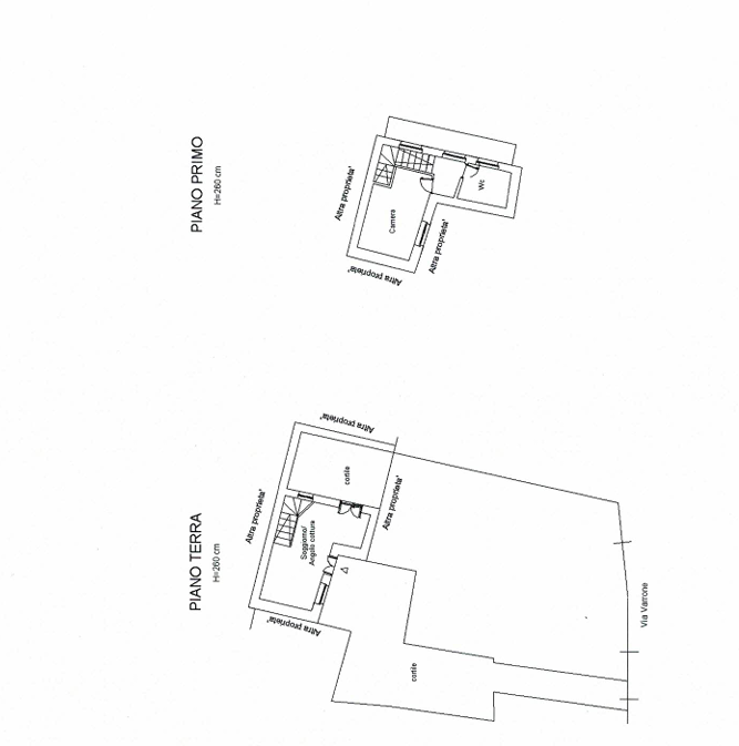
    • Piano Terra: Ingresso su accogliente zona giorno con angolo cottura. Da qui si ha accesso diretto al cortile privato, un'area esclusiva perfetta per momenti di relax all'aperto.

    • Piano Primo: La zona notte ospita una camera da letto e un bagno, serviti da un lungo balcone che affaccia sull'interno, garantendo luminosità e riservatezza.

    Comfort e Dettagli Tecnici L'immobile si presenta in ottime condizioni ed è dotato di finiture che ne accrescono il comfort abitativo e l'efficienza:

    • Infissi in legno con doppio vetro, per un eccellente isolamento termico e acustico mantenendo l'estetica tradizionale.

    • Riscaldamento autonomo, che permette una gestione personalizzata dei consumi e basse spese di gestione.

    Perché Investire Qui Questa proprietà rappresenta un'opportunità ideale per chi cerca un investimento sicuro. Grazie alla posizione strategica, alla gestione autonoma e alla presenza di spazi esterni, l'appartamento vanta uno storico di locazioni continuative. È la soluzione perfetta da mettere a reddito immediatamente o da utilizzare come pied-à-terre di charme nel cuore della città.

    Mostra tutta la descrizione

Caratteristiche

  • Piani edificio: 2
  • Su più livelli: Si
  • Piano immobile: 0
  • Infissi esterni: Doppio Vetro / Legno
  • Affaccio: Interno
  • Classe immobile: Media

Accessori

  • Giardino: Privato

Posizione

Planimetrie

  • Categoria Catastale: A/2
  • Planimetrie:

Chiedi a un agente di questa casa

Telefono
By clicking the «RICHIEDI INFO» button you agree to the Termini di utilizzo and Politica sulla riservatezza

Condividi questo proprietà

Copia

O condividi con

Powered by Estatik

Reset password

Inserisci il tuo indirizzo email e ti invieremo un link per cambiare la tua password.

Inizia con il tuo account

per salvare le tue case preferite e altro ancora

Iscriviti con e-mail

Inizia con il tuo account

per salvare le tue case preferite e altro ancora

By clicking the «ISCRIZIONE» button you agree to the Termini di utilizzo and Politica sulla riservatezza
Powered by Estatik